Samples of Projects

1. CAD CONVERSION - MANUAL TO IMPERIAL CAD 

           

 View in pdf  

       CAD CONVERSION - MANUAL TO METRIC CAD 

           

   View in pdf  

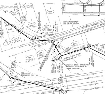
  2. TELECOMMUNICATION - FIELDING, PLANNING, DESIGN, DRAFTING  

      

View in pdf                                                             View in pdf  

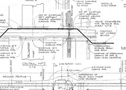
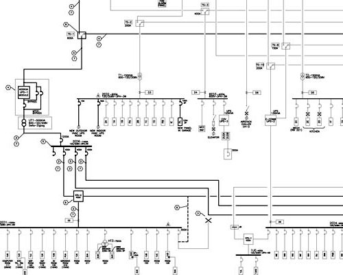
3. ELECTRICAL - SURVEYING, PLANNING, DRAFTING  

                

 View in pdf                                                            View in pdf 

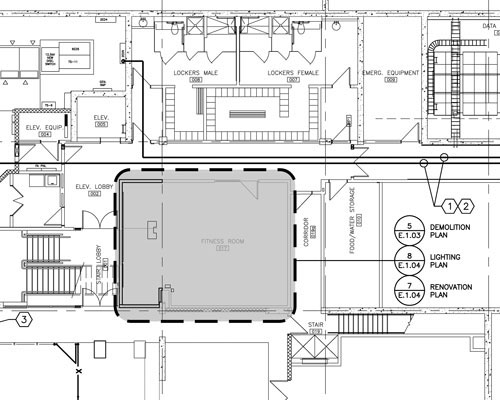
4. ARCHITECTURAL - DESIGN, PLANNING, DRAFTING   

     

View in pdf  

Engineering service (Vancouver, BC)

Strategic fiber planning
New development design 
Power distribution management
Cost estimation / budgeting

 

CAD drafting service: AutoCAD, Mictostation

CAD Drafting for Telecommunication
Multi-layer conversion Imperial to Metric
Drafting for Electrical/ Civil Engineering 
Conversion PDF - DWG - DGN - DXF 

 

Engineering, consultation, progect management 

Consulting and staff training 
Liaising with third parties 
Projects cost management 
Project audit compliance 

 

Engineering and GIS service

Mapping and Layering client's data
Positioning/Location

Fielding works - survey, audit and proposal

Onsite survey of an existing cable plant 
Onsite audit of existing equipment 
Proposals the cable/ fiber optic routes
Proposals for suitable locations for new installations 

Turnkey solution for telecommunication in BC

Leading projects from beginning to the end
Pick up management on any phase